LAS Home

Client Login

Photo: Lord Aeck Sargent

RD1 Spirits

RD1 Distillery at The Commons

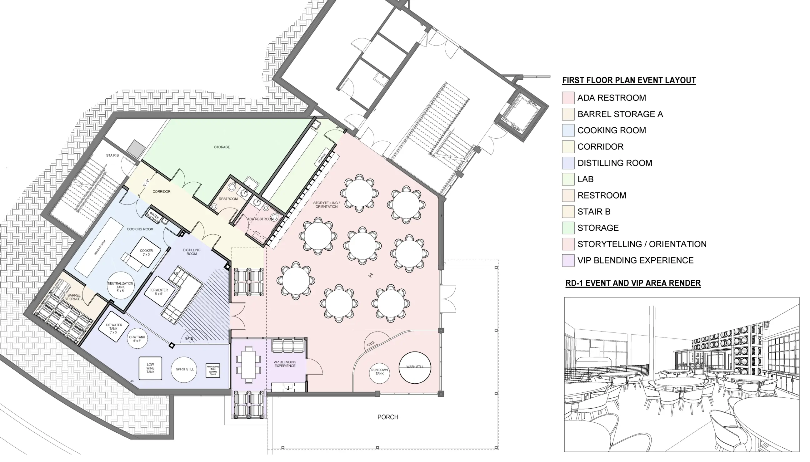
The RD1 Distillery at The Commons, designed by Lord Aeck Sargent, seamlessly integrates Lexington’s rich bourbon heritage with contemporary innovation in wood finishing. The two-story, 10,215-square-foot facility features outdoor seating areas on both levels, providing scenic views of a historic water tower, a prominent landmark within the entertainment district. The distillery offers visitors an engaging experience with interactive exhibits highlighting bourbon milestones, a comprehensive fermentation-to-distillation tour, and an R&D lab for wood finishing. Additionally, the space includes four private tasting rooms, a VIP speakeasy, a craft cocktail bar, a gift shop, and private event areas, all meticulously crafted to enhance the visitor's journey through RD1’s bourbon portfolio.

LOCATION

Lexington, KY

SIZE

10,215 sf

PROJECT  TYPE

Retail, Public Plazas, Visitor Center

Photo: Lord Aeck Sargent

Photo: Lord Aeck Sargent

Photo: Lord Aeck Sargent

Photo: Lord Aeck Sargent