LAS Home

Client Login

Photo: Jonathan Hillyer

Zoo Atlanta

Conservation Action Resource Center

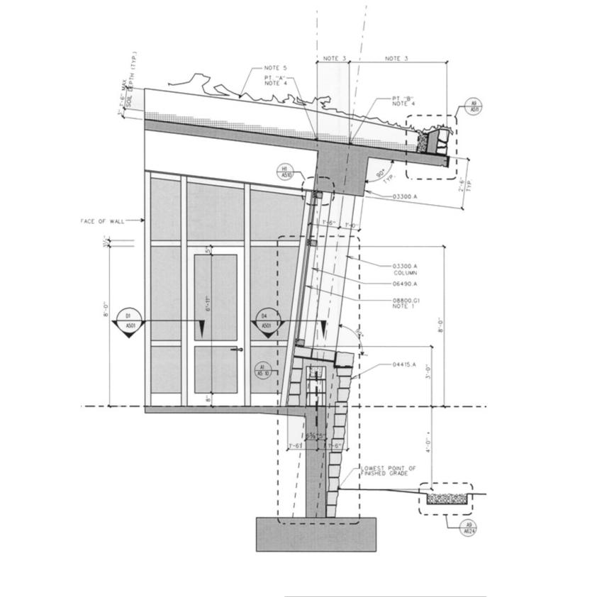
The Conservation Action Resource Center (ARC) demonstrates an integrated approach to sustainability, aligning architectural design with environmental education. The project utilized reclaimed materials such as recycled Coca-Cola bottles and bamboo for interior finishes, as well as salvaged Georgia granite and recycled copper shingles for the exterior. The building is embedded into a hillside to enhance insulation, while a living roof with native vegetation mitigates heat gain, reduces cooling demands, and decreases stormwater runoff. The facility’s fluid design and siting reflect a harmony with the natural landscape, reinforcing conservation principles through both structure and function.

LOCATION

Atlanta, GA

SIZE

20,000 sf

PROJECT  TYPE

Environmental Sciences, Nature Center, Green Infrastructure

Photo: Jonathan Hillyer

Photo: Jonathan Hillyer

Photo: Jonathan Hillyer

Architectural Excellence

Atlanta Urban Design Commission

Outstanding Achievement Award

American Concrete Institute

Best New Public Building

Atlanta Magazine

Photo: Jonathan Hillyer

Photo: Jonathan Hillyer