LAS Home

Client Login

The X Company

X tempe

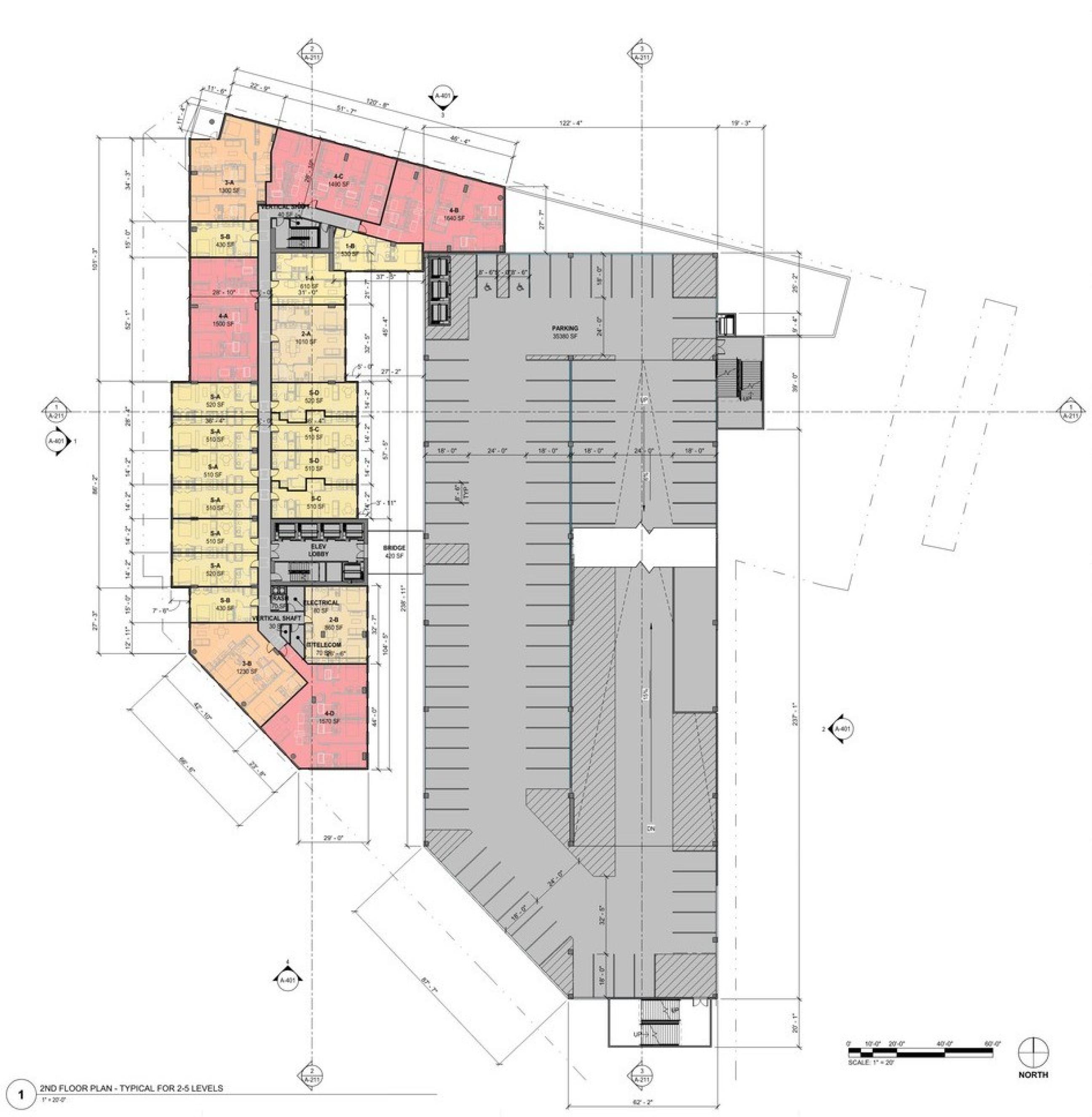
X Tempe is a twenty-one-story residential apartment building with 418 apartments (760 beds) paired with a six-level parking building in Tempe, Arizona. Nineteen residential levels sit above a ground level consisting of co-working, lounge and residential services. The sixth levels of the tower and parking structures are entirely amenity areas holding a large gym, restaurant and bar, and an expansive terrace which are open to the public.

LOCATION

Phoenix, AZ

SIZE

760 Beds